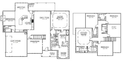
Home Plan Detail

Avalon
Square Footage 3,849

Bed 5
Bath 3.5
Garage 2/3

Levels: 2


Elevation renderings, floor plans and pdf sheets are for illustrative purposes only and may differ from final layout. Please contact us for more details.



Floorplan